|
DMC型脉冲袋式仓顶除尘器适宜布置在各种粉料贮存库的顶部用于过滤含尘气体。
主要技术说明
DMC型脉冲袋式仓顶除尘器主要技术参数见下表,在选型时应注意入口粉尘浓度,在技术性能上.透过滤袋的气流速度(即过滤风速)与气体含尘浓度成反比,因此,在确定过滤面积时.还须满足滤袋的聚尘能力(即两次清灰期间滤袋单位面积上最大允许积尘数量),一股聚尘能力不大于400克/mz,可按下式计算:聚尘能力二入口气体含尘浓度x过滤风速x两次清灰间隔时间,计算结果如超过聚尘能力.应调整过滤,增加过滤面积。
主要技术参数
|
型号 |
DMC-24 |
DMC-36 |
DMC-48 |
DMC-60 |
DMC-72 |
DMC-84 |
DMC-96 |
DMC-108 |
DMC-120 |
|
过滤面积(m²) |
18 |
27 |
36 |
45 |
54 |
63 |
72 |
81 |
90 |
|
滤袋数量 |
24 |
36 |
48 |
60 |
72 |
84 |
96 |
108 |
120 |
|
滤袋规格 |
Φ120×2000
|
|
工作温度(℃) |
<120
|
|
设备压力(Pa) |
1000~1500
|
|
除尘效率 |
99%
|
|
入口含尘浓度 |
<15(g/m³)
|
|
过滤风速m/min |
0.5~4
|
|
处理风量m³/h |
540~4300 |
810~6480 |
1080~8640 |
1350~10800 |
1620~12900 |
1890~15100 |
2160~17200 |
2430~19400 |
2700~21600 |
|
喷吹气压(Mpa) |
0.5~0.7
|
|
脉冲电磁阀(个) |
4 |
6 |
8 |
10 |
12 |
14 |
16 |
18 |
20 |
|
脉冲宽度(m) |
0.1~0.2
|
|
脉冲周期(s) |
60~120
|
|
脉冲间隔(s) |
1~50
|
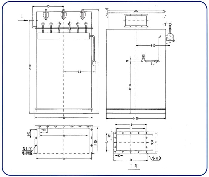
外形尺寸
|
代号 |
A |
B |
C |
D |
H |
G |
J |
L |
M |
N |
I |
L1 |
K |
K1 |
N-d |
N1-d1 |
|
DMC24 |
1410 |
1450 |
360 |
470 |
2575 |
3/4" |
440 |
339 |
1200 |
370 |
400 |
620 |
110 |
113 |
14-Φ11 |
24-Φ18 |
|
DMC36 |
1360 |
1400 |
755 |
466 |
2575 |
3/4" |
441 |
339 |
1000 |
366 |
400 |
800 |
147 |
113 |
12-Φ11 |
26-Φ18 |
|
DMC48 |
1760 |
1800 |
955 |
890 |
2575 |
1 |
840 |
339 |
1200 |
370 |
800 |
1020 |
110 |
113 |
20-Φ10 |
32-Φ18 |
|
DMC60 |
2160 |
2250 |
1200 |
866 |
2600 |
1 |
836 |
336 |
2000 |
366 |
800 |
1250 |
120 |
120 |
20-Φ11 |
36-Φ18 |
|
DMC72 |
2614 |
2650 |
1400 |
870 |
2600 |
1 |
840 |
339 |
2400 |
370 |
800 |
1390 |
120 |
113 |
20-Φ11 |
40-Φ18 |
|
DMC84 |
3014 |
3050 |
1600 |
1270 |
2600 |
1 |
1240 |
339 |
2800 |
370 |
1200 |
1590 |
120 |
113 |
26-Φ11 |
44-Φ18 |
|
DMC96 |
3410 |
3450 |
1835 |
1270 |
2600 |
1 |
1240 |
339 |
3200 |
370 |
1200 |
1755 |
124 |
113 |
26-Φ11 |
48-Φ18 |
|
DMC108 |
3850 |
3900 |
2035 |
1450 |
2600 |
1 |
1400 |
339 |
3600 |
370 |
1360 |
|
120 |
113 |
34-Φ11 |
52-Φ18 |
|
DMC120 |
4260 |
4300 |
2225 |
1450 |
2600 |
1 |
1240 |
336 |
4000 |
370 |
1200 |
|
124 |
113 |
26-Φ11 |
56-Φ18 |
外形尺寸图

|