|
LD型浓相气力输送泵主要技术参数
|
型号/参数 |
LD0.4 |
LD0.6 |
LD1.0 |
LD1.5 |
LD2.0 |
LD3.0 |
LD4.0 |
LD5.0 |
|
公称直径(mm) |
800 |
800 |
1000 |
1200 |
1400 |
1600 |
1800 |
2000 |
|
总容积(m³) |
0.4 |
0.6 |
1.0 |
1.5 |
2.0 |
3.0 |
4.0 |
5.0 |
|
配用输送管径(mm) |
DN65 |
DN80
|
DN100~DN125
|
DN100~DN150
|
|
使用温度(℃) |
≤200
|
|
最大输送距离(m) |
<1000
|
|
最大设计压力(MPa) |
0.78
|
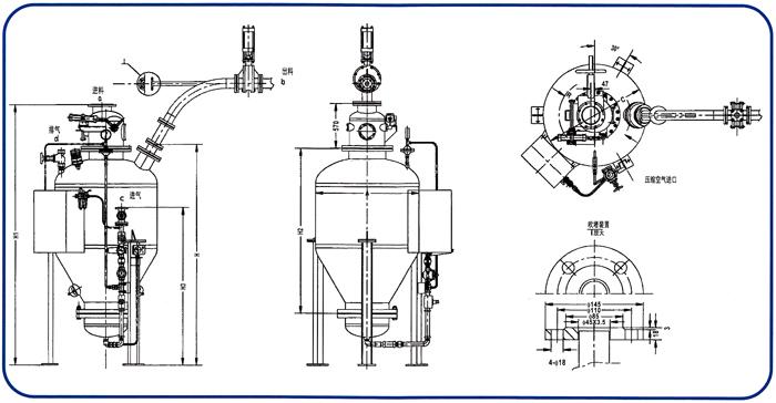
LD型浓相气力输送泵外型图

LD型浓相气力输送泵外形尺寸与接口表
|
代号\参数 |
LD-0.4 |
LD-0.6 |
LD-1.0 |
LD-1.5 |
LD-2.0 |
LD-3.0 |
LD-4.0 |
LD-5.0 |
|
A |
816 |
816 |
1020 |
1220 |
1420 |
1420 |
1824 |
2028 |
|
B |
490 |
497 |
530 |
582 |
625 |
625 |
806 |
1130 |
|
C |
780 |
780 |
1150 |
1350 |
1550 |
1550 |
1800 |
2000 |
|
H |
1592 |
2055 |
2250 |
2498 |
2557 |
2557 |
3136 |
3277 |
|
H1 |
2106 |
2555 |
2803 |
3023 |
2985 |
2985 |
3600 |
3755 |
|
H2 |
1160 |
1560 |
1710 |
1990 |
1980 |
1980 |
2497 |
2700 |
|
H3 |
1200 |
1535 |
1635 |
1718 |
1690 |
1690 |
|
|
|
R |
350 |
350 |
395 |
430 |
480 |
480 |
500 |
500 |
|
a |
DN200
|
|
b |
DN65 |
DN80 |
DN80 |
DN100 |
DN100 |
DN100 |
DN125 |
DN125 |
|
c |
DN40 |
DN40 |
DN40 |
DN40 |
DN40 |
DN50 |
DN50 |
DN50 |
|
d |
DN40 |
DN40 |
DN40 |
DN40 |
DN80 |
DN80 |
DN100 |
DN100 |
LD型仓泵工作原理
LD正压浓相仓泵工作过程分为四个阶段:
1.进料阶段: 进料阀打开,物料自由落入泵体内,当泵体内上升物料触及料位计后.料位计发生料满信号.进料阀自动关闭,完成进料过程。
2、流化加压阶段: 进气阀自动开启,压缩空气进入泵体底部.扩散后穿过流化床.在物料充分流化同时,泵内气压上升。
3,输送阶段: 当泵内压力达到一定值时,压力传感器发出信号,出料阀自动开启,流化床上的物料流化加强,输送开始,泵内物料逐渐减少,此过程中流化床上的物料。始终处于边流化边输送状态。
4、吹扫阶段: 当泵内物料输送完毕,压力下降到管道阻力时,指示灯发出信号,通气延续一定时间,压缩空气清扫管路.然后进气阀关闭,间隔一定时间,关闭出料阀.打开进料阀.完成一次输送循环。
正压浓相仓泵工作原理图
<IMG border=0 src=" UploadFiles 20130710140327257.jpg?>
|